Jesse R. Zeigler House
The Reverend Jesse R. Zeigler Residence is a Frank Lloyd Wright house in Frankfort, Kentucky.
Rev. Jesse R. Zeigler House | |
![]() Front of the house | |
![]() ![]() | |
| Location | 509 Shelby St., Frankfort, Kentucky |
|---|---|
| Coordinates | 38°11′26″N 84°52′35″W |
| Area | Less than 1 acre (0.40 ha) |
| Built | 1909 |
| Architect | Frank Lloyd Wright |
| Architectural style | Prairie School |
| NRHP reference No. | 76000885[1] |
| Added to NRHP | May 3, 1976 |
The Zeigler house is the only Frank Lloyd Wright structure built in Kentucky during the lifetime of the famous architect. The design came from a chance meeting between Zeigler and Wright while both were traveling to Europe in late October 1909. They struck up a conversation and the commission of this structure, completed the following year, was the result.[2] The structure is a typical example of Wright's "A Fireproof House for $5000".[3]
The structure was placed on the National Register of Historic Places in 1976.[1] The house is privately owned and is not available for tours.[4]
Gallery
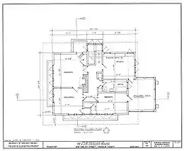
First floor plan
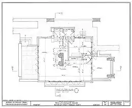
Second floor plan (non-original, enclosed rear porch has been removed since 1972
See also
References
Wikimedia Commons has media related to Jesse R. Zeigler House.
- "National Register Information System". National Register of Historic Places. National Park Service. July 9, 2010.
- "Rev. Jesse R. Zeigler House (Frank Lloyd Wright House; Marker Number:1726)". Kentucky Historical Marker Database, Kentucky Historical Society. Kentucky.gov. 2008-08-17. Archived from the original on 2008-06-16.
- Beers, Peter. "Reverend Jessie R. Ziegler Residence: Frankfort, Kentucky". Archived from the original on February 17, 2004. Retrieved 6 July 2010.
- "Rev. Jesse R. Zeigler House". Frank Lloyd Wright Sites. Retrieved February 21, 2019.
- Storrer, William Allin. The Frank Lloyd Wright Companion. University Of Chicago Press, 2006, ISBN 0-226-77621-2 (S.164)
This article is issued from Wikipedia. The text is licensed under Creative Commons - Attribution - Sharealike. Additional terms may apply for the media files.



