Villard Houses
The Villard Houses are a set of former residences comprising a historic landmark at 451–457 Madison Avenue between 50th and 51st Streets in the Midtown Manhattan neighborhood of New York City. Designed by the architect Joseph Morrill Wells of McKim, Mead & White in the Renaissance Revival style, the residences were erected in 1884 for railroad magnate Henry Villard. They comprise a portion of the Lotte New York Palace Hotel, the main tower of which is to the east.
Villard Houses | |
![]() c. 1890 | |
| Location | 29½ 50th Street, 24–26 East 51st Street, and 451–457 Madison Avenue, Manhattan, New York City |
|---|---|
| Coordinates | 40°45′29″N 73°58′31″W |
| Built | 1882–84 |
| Architect | Joseph Morrill Wells of McKim, Mead & White |
| Architectural style | Renaissance |
| NRHP reference No. | 75001210[1] |
| NYSRHP No. | 06101.004572 |
| NYCL No. | 0268–0270 |
| Significant dates | |
| Added to NRHP | September 2, 1975 |
| Designated NYSRHP | June 23, 1980[2] |
| Designated NYCL | September 30, 1968 |
The building comprises six separate residences in a "U"-shaped plan, with wings to the north, east, and south surrounding a courtyard on Madison Avenue. The facade is made of Belleville sandstone, and each house consists of a raised basement, three stories, and an attic. Among the artists who worked on the interiors were artist John La Farge, sculptor Augustus Saint-Gaudens, and painter Maitland Armstrong. Some of the more elaborate spaces, such as the Gold Room, dining room, and reception area in the south wing of the complex, still exist as part of the New York Palace Hotel.
The houses were commissioned by Henry Villard, president of the Northern Pacific Railway, shortly before he fell into bankruptcy. Ownership of the residences changed many times through the mid-20th century. By the late 1940s, the Roman Catholic Archdiocese of New York had acquired all of the houses, except the northernmost residence at 457 Madison Avenue, which it acquired from Random House in 1971. The New York City Landmarks Preservation Commission designated the complex an official landmark in 1968, and the residences were listed on the National Register of Historic Places in 1975. As part of the construction of the New York Palace Hotel, completed in 1980, the north wing was turned into office space for city preservation group Municipal Art Society, which occupied the space until 2010.
Site
The Villard Houses are in the Midtown Manhattan neighborhood of New York City, bounded by Madison Avenue to the west, 51st Street to the north, and 50th Street to the south.[3][4] The residences are composed of two land lots. The rectangular land lot under the northern residence, at 457 Madison Avenue, has a frontage of 60 feet (18 m) on Madison Avenue and 74 feet (23 m) on 51st Street, and it covers about 4,485 square feet (416.7 m2).[5] The rest of the residences occupy the same land lot as the Lotte New York Palace Hotel immediately to the east. The "L"-shaped lot, carrying the address 455 Madison Avenue, has a frontage of 140 feet (43 m) on Madison Avenue and 200 feet (61 m) on 50th Street, and it covers 35,720 square feet (3,318 m2).[6] Nearby buildings include Olympic Tower, 11 East 51st Street, and 488 Madison Avenue to the northwest; St. Patrick's Cathedral to the west; and 18 East 50th Street and the Swiss Bank Tower to the southwest.[4][6]
Architecture
The Villard Houses complex was designed by architect Joseph M. Wells of McKim, Mead & White.[7][8][9] Charles Follen McKim of that firm was responsible for the overall plan, though Wells designed the individual details.[8][9] The homes are among several projects McKim, Mead & White designed for railroad magnate Henry Villard.[10][11]
The houses are designed in the Romanesque Revival style with Italian Renaissance touches.[9][12] The complex was McKim, Mead & White's first major use of the Italian Renaissance style.[12] The design was influenced by Rome's Palazzo della Cancelleria,[3][13][14][15][16] though some inspiration may have come from the Palazzo Farnese, also in Rome.[17][18] The two palazzos had been Wells's favorite Renaissance buildings.[9][13] Architectural writers William Shopsin and Mosette Glaser Broderick have also cited the Palazzo della Farnesina as an influence on the design of the Villard Houses.[18] The houses' design contained some major deviations from those of the Roman palazzos. For example, the Cancelleria's windows were decorated based on internal use, with the most elaborate windows at the piano nobile, while the Villard Houses' windows were decorated based on the floor height, with the most elaborate windows illuminating the guests' and servants' rooms on the top floors.[14]
Layout and courtyard

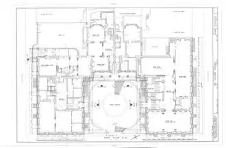
The building was erected as six separate residences in a "U"-shaped plan,[lower-alpha 1] with three wings surrounding a central courtyard on Madison Avenue.[9][20][19][21] At the time of the houses' completion, they faced a similar courtyard at the eastern end of St. Patrick's Cathedral.[21] The Lady Chapel at the cathedral had not yet been built, so St. Patrick's eastern end was a flat wall flanked by a rectory and an archbishop's house. The Villard courtyard was built to complement St. Patrick's courtyard, which was about the same size.[22]
The south wing consisted of a single residence, Henry Villard's residence at 451 Madison Avenue, also known as 291⁄2 East 50th Street.[3][22][23] The north wing consisted of three residences at 457 Madison Avenue (which occupied the western two-thirds of that wing) and 24-26 East 51st Street.[3][18] Both of these wings measure 60 feet (18 m) along Madison Avenue with a depth of 100 feet (30 m).[22][17] The eastern end of the south wing had a seven-story tower,[24] while the eastern end of the north wing had a one-and-a-half-story entrance porch.[25][26] The center wing, on the east side of the courtyard, was a double house at 453 and 455 Madison Avenue,[3] which extended 40 feet (12 m) eastward beyond the end of the north and south wings.[17]
The courtyard was designed both as a symbol of Villard's wealth and as an "urban gesture" to traffic on Madison Avenue.[15] The courtyard measures 80 feet (24 m) wide between the north and south wings and is 73 feet (22 m) deep.[17] It is flanked by two square posts with ball decorations above them. These posts are connected by a scrolled arch made of wrought iron.[25][27] A Florentine-style lamp is suspended from the wrought-iron arch.[25] Originally, the courtyard had a fountain surrounded by a circular driveway.[23] The driveway had been arranged to allow horse-drawn vehicles to enter the courtyard easily. The arrangement of residences around a courtyard was similar to the Apostolic Chancery at Vatican City.[28][29] The Roman Catholic Archdiocese of New York used the courtyard as a parking lot during the mid-20th century. During the construction of the Palace Hotel in the 1970s, a marble and granite medallion was placed in the courtyard.[30]
Facade

The facade is made of largely unornamented brownstone. While Stanford White of McKim, Mead & White had recommended using granite, Villard had chosen instead to use brownstone.[31] Each house consists of a raised basement, three stories, and an attic topped by a cornice. The houses measure 68 feet (21 m) from the sidewalk to the top of the cornice.[17] The north and south wings have three bays facing Madison Avenue, five facing the courtyard, and seven facing the respective side streets. The center wing has seven bays facing Madison Avenue.[3] In addition, there are horizontal band courses wrapping around each floor under the window sills.[24] Though the complex was not taller than many contemporary townhouses, it appeared imposing because the horizontal lines of the facade were continuous across all of the houses.[32]
The basement and first story of each house is rusticated.[33][34] The raised basement consists of rectangular openings, above which runs a molding with torus shapes. The first floor has arched windows, which are topped by spandrels with rosette-shaped medallions. The first floor is topped by an architrave with a plain frieze.[3] The ground story of the center wing at 453 and 455 Madison Avenue consists of five arches.[17][25][35][31] The center-wing arches are supported by granite columns.[17][36] There are decorative medallions above the arches.[22] Behind are the entrances to the center wing, as well as a barrel vault with rosette coffers and decorative moldings.[23][25]
The ground story of the north and south wings has doorways leading into the courtyard.[27] The north wing at 457 Madison Avenue and the south wing at 451 Madison Avenue have doorways that are accessed by stoops from the courtyard. These entrances have a frieze and cornice above them as well as lamps on either side.[25] The entrances at 451 and 457 Madison Avenue were presented as equal in stature to the center-wing entrances, contrary to traditional houses, where the center entrance would typically be the most imposing one.[14] When the New York Palace Hotel was built in the late 1970s and the south wing was converted to a bar, the former south-wing entrance was turned into an exit-only. The south-wing doorway could not be retained as an "entrance" because, under zoning regulations of the time, the bar entrance would be too close to the Lady chapel behind St. Patrick's Cathedral.[37]
The upper stories are clad with plain stone ashlar.[33] The quoins at the corners of each house are rusticated; these quoins delineated the divisions of the residences.[22][33] On each of the three stories above the center wing's arches are three pairs of windows.[25][35][36] Some of the second-story windows have balconies outside their windows, which are supported by console brackets.[25][34][35] The year 1884 is inscribed in Roman numerals on the lintel above one of the windows in the south wing.[38] A plain band course runs above the second floor and a torus-shaped molding runs above the third floor.[3] The attic is designed as a set of small square windows.[34][36] The dentilled cornice contains an egg-and-dart molding as well as modillions with foliate patterns. The roofs above all these houses are hip roofs with brown tile.[3]
Interior
McKim, Mead & White was involved in the original decoration of all the interiors,[13] and the firm's principals hired several friends to assist.[39] These included artistic-glass manufacturer John La Farge, sculptor Augustus Saint-Gaudens, painter Francis Lathrop, and mosaic artist David Maitland Armstrong.[40][41] Leon Marcotte, Sypher and Company, and A. H. Davenport and Company provided some of the furniture. Candace Wheeler may have designed some of the embroidered fabrics, and Ellin & Kitson performed much of the stone carving. Joseph Cabus designed a large portion of the houses' paneling, as suggested by his invoice for the building's woodwork, which was almost $100,000 (equivalent to $3,257,037 in 2022).[40]
All six residences' interiors were decorated with the highest-quality materials.[14] s constructed, the residences had ornate furniture; for example, Villard's ground-story drawing room was upholstered with a reddish-brown color that harmonized with the color of the room.[17]T he residences were built with 13 bathrooms, each of which contained terrazzo floors and tile and marble walls.[42] Each bedroom was fitted with its own bathroom.[17][23][43] The attic story of all of the residences was devoted to servants' rooms, storerooms, and other service facilities.[34] A portion of the mansion is available as an event rental within the New York Palace Hotel.[44]
Main residence
The most ornate detail was used in Villard's mansion in the south wing.[41][45] Villard's ground story was the most elaborate, though the upper stories were less so.[17] At ground level, there was a reception vestibule; a drawing-room suite divided into three sections; a music room with a balcony; and a dining room with a pantry.[17][22] Villard's residence had a billiard room, kitchen, servants' dining room, laundry, and wine room in the basement.[13][22][23] The design of Villard's residence, described by architectural historian Leland M. Roth as "a standard of restrained elegance in interior decoration", was the subject of an 1897 handbook published by Edith Wharton.[46]
Ground story
.tif.jpg.webp)
Entering the south wing from the courtyard, visitors reached the Villard residence's reception vestibule. This vestibule had a set of marble steps and a wall with a tile mosaic band.[43][47]
Perpendicular to the vestibule was a marble-clad hall measuring 42 by 28 feet (12.8 by 8.5 m).[17] The hallway had three Siena-marble arches sculptured by Saint-Gaudens, as well as a fireplace with a carved marble mantel.[23][43][48][49] The vaulted ceiling of the hallway was also made in Siena marble.[23][47] Armstrong decorated a mosaic with a foliate pattern on the ceiling.[50] North of the hallway was a grand stairway decorated in golden marble, which led to the second floor.[17][23][43] The staircase, measuring 12 feet (3.7 m) wide, had a carved clock by Saint-Gaudens on one landing of the stair.[17][43][49][51] A balustrade overlooks the stairway; each of its balusters has a different design.[52] The hallway also had a small carved-wood elevator door near the reception vestibule, as a minor staircase for guests.[43]
At the western end of the south wing's hallway was a drawing-room suite measuring 14 by 28 feet (4.3 by 8.5 m), flanked on either side by drawing rooms 19 by 28 feet (5.8 by 8.5 m).[17] Joseph Cabus designed wooden cabinetry for the space.[53] The drawing rooms had mahogany and white wood finishes, placed upon a light reddish-brown and yellow color scheme.[17][43] The family of Whitelaw Reid used these drawing rooms as a ballroom during the early 20th century,[54][55] with green marble columns and a gilded ceiling.[55] The drawing rooms also had ornate marquetry, which Reid subsequently reinstalled in his Purchase, New York, estate.[53] The Women's Military Services Club used the drawing rooms as a lounge in the 1940s.[56] After the opening of the New York Palace Hotel in 1980, it was turned into a cocktail room.[57][58][59]
The eastern end of the south wing's hallway contained a music room measuring 48 by 24 feet (14.6 by 7.3 m), with an elliptical vaulted ceiling 32 feet (9.8 m) high. A carved-pine wainscoting ran around the music room's wall at a height of 8 feet (2.4 m).[17] The music room was also known as the Gold Room because the decorations were colored gold.[25][60] A musicians' balcony was suspended on the north wall.[17][23][60] Musicians were able to enter the balcony via a staircase hidden behind the wall.[49][60][61] Saint-Gaudens installed five plaster casts on each of the north and south walls, which were copies of "singing angels" that Luca della Robbia designed for the Florence Cathedral.[53][62] John La Farge designed two lunettes called "Art" and "Music";[60][61] these were installed only after Reid moved into the house.[55] La Farge is also credited with designing leaded glass windows on the east wall, above the wainscot.[60][61] The decoration of the music room was finished only when Reid moved in.[51][55] It was turned into a cocktail lounge in 1980 but retained its original name.[58][59] Since 2019, the Gold Room has been a restaurant for the Lotte New York Palace Hotel.[61]

The southernmost portion of the ground story had a main breakfast room and a dining room that could be combined into a space measuring 20 by 60 feet (6.1 by 18.3 m).[17][51] The room had a wall with English oak and white mahogany, a ceiling with English oak beams, and carved friezes with floral designs. Two allegorical fireplace mantels, one at either end of the room, were made of red Verona marble and were carved by Saint-Gaudens.[23][43][48][63] One of the mantels was relocated several times before being installed in the Palace Hotel lobby in 1980.[30][63] The wall was divided into three sections by red-mahogany pilasters; the upper part of the wall had Villard monograms. An oak partition could be used to divide the room into three segments.[23] The ceiling had paintings of mythological figures designed by Francis Lathrop.[23][51][63] The dining room's cornice has inscriptions in Latin.[23][63][64] After Reid moved out, the dining room became a meeting room for the Roman Catholic Archdiocese of New York.[64] In 1980, it became a bar within the hotel.[58][59]
Upper stories
The upper stories of number 451 had a floor layout similar to the ground story and also contained fireplaces.[23][43] The second-story hallway had a gilded ceiling, embossed-leather walls, and a large mantelpiece.[23] Adjoining the private music room was a private library fitted in mahogany, with carved medallions on the bookcases. The coffered ceiling contained medallions of publishers and three murals.[43][65] The second-floor guest bedroom had gold and crimson decorations on the walls[23][43] and a ceiling with wooden cross beams.[43][66] A stairway with a wainscoted wall and a decorated balustrade led between the second and third stories of the south wing. The bedrooms on the third floor had chintz wall-hangings and colorful decorations.[23] The Reid family largely retained these design details,[54] as did the Women's Military Services Club.[56]
Other residences
The other houses were similarly elaborate. The Fahnestock residence in the north wing had a reception hall and a ballroom, the latter of which was subdivided by Random House when it occupied the space in the mid-20th century. A marble stairway also rose to the second floor.[67] A similarly ornate decorative stairway, in the residence of Edward D. Adams (at number 455[20][68]), was moved to the Brooklyn Museum in the 1970s.[69] The modern main entrance to the New York Palace, within what was formerly the entrance to the center wing, contains a grand staircase down to the main hotel lobby.[30][57]

The other residences had similarly elaborate decorations on the upper floors. Number 457, the Fahnestock residence in the north wing, had a gold-leaf ceiling and a circular stairway, designed by Stanford White.[28][29] The oak-clad library of number 457 had ivory buttons with the letters "B" and "M", which once respectively summoned a butler and a maid.[67] In the 1980s, the third story of number 457 was taken by the Urban Center, which had a members' gallery facing the courtyard, as well as a committee room and a staff room.[70] When the eastern section of the north wing was demolished in the 1970s, one room was reconstructed on the third floor of the Palace Hotel.[71]
History
Planning
The houses were commissioned by Henry Villard, then the president of the Northern Pacific Railway.[10][11][72] Villard wanted a building that resembled palaces in his native Bavaria.[73] In April 1881,[38][74] he bought a plot on the east side of Madison Avenue between 50th and 51st Streets, from the trustees of St. Patrick's Cathedral.[16][75] The site was 200 feet (61 m) wide[74][16] and either 151 feet (46 m)[74] or 175 feet (53 m) deep.[16] At the time, what is now the Park Avenue railroad line ran in a trench directly behind the site, and Park Avenue itself was still known as Fourth Avenue.[18] Charles Follen McKim of McKim, Mead & White was hired to design a group of houses for Villard,[72][75] arranged around a courtyard with a fountain and garden.[76] The commission arose from personal connections; McKim was one of Villard's family friends, and Villard's brother-in-law and McKim's sister were married.[16][38] The Real Estate Record and Guide speculated that the mansions were arranged to "secure privacy and get rid of tramps, and to live in a quiet and secluded way", similar to dwellings arranged around courtyards in the suburbs of London and Paris.[20][77]
Details of the design were revised through October 1881, when McKim temporarily left New York City to work on a railroad terminal for Villard in Portland, Oregon.[75] The job was reassigned to Stanford White who, after a short time, left the city to visit his brother in New Mexico.[52][75] White then reassigned his projects to various junior architects in his office. Joseph M. Wells agreed to take over the Villard design on the condition that the firm's remaining partner, William Rutherford Mead, allowed him to completely redesign the exterior, retaining only the general layout of the houses. According to Leland Roth, one account had it that McKim and White had "immediately [became] advocates of Renaissance classicism" upon returning and seeing the updated plans.[75] Roth wrote that McKim and White were probably responsible for the general style of the facade,[75] although Wells was definitely responsible for the architectural details.[8][9][75] White's original architectural drawings no longer exist.[52]
Early construction
By November 1881, excavation of existing buildings was underway at the northeast corner of Madison Avenue and 50th Street.[72] The site was drilled until the underlying layer of bedrock was exposed, since Villard did not want to damage Columbia College's buildings nearby. In May 1882, McKim, Mead & White submitted plans to the Bureau of Buildings for a four-story residence at the corner of Madison Avenue and 50th Street, measuring 100 by 60 feet.[78][79] This was to be the first of a series of six residences surrounding a courtyard.[13] By late 1882, the houses' exteriors had been completed and parts of the interiors were being furnished.[80]
So large did the residences appear that the public assumed Villard could only occupy the center wing, with a kindergarten and school in one of the side wings and a gymnasium, theater, and ballroom in the other side wing. One residence on the north wing, the unit with a doorway facing the courtyard, was to have been occupied by Villard's adviser Horace White, but this did not happen.[23] According to a later New York Times article, Villard had planned the entire complex as his own residence, but he was obligated to split it into multiple smaller units when his wealth declined.[54]
Villard obtained a mortgage loan for the property from the Manhattan Savings Institution in late 1882.[81][82] One of the three wings, likely Villard's own residence in the south wing, had been built by mid-1883.[83] Villard directed McKim, Mead & White to design the interiors of each individual residence; at the time, most residences were laid out by interior designers and decorators rather than architecture firms.[13] The interiors of the other residences in the group were designed according to the tastes of the residents.[13][84] Villard's residence itself cost $1 million without furnishing (equivalent to about $25.9 million in 2021), and the decoration cost another $250,000 (about $6.48 million in 2021).[17] Stanford White was proud of the project, recalling in 1896 that it was "the beginning of any good work that we may have done".[85]
Villard bankruptcy and completion
Villard fell into bankruptcy just before the houses were completed.[46][86] He moved into his mansion in December 1883 on the same day that he resigned from the Oregon and Transcontinental Company.[87] In late December 1883, Villard transferred two of the other lots next to his residence to his legal advisers Edward D. Adams and Artemas H. Holmes.[81][14] According to Horace White, the transfers were made on the condition that Holmes and Adams construct residences similar in style to his own residence.[86] Adams lived at 455 Madison Avenue while Holmes lived at 453 Madison Avenue.[20][68] The same month, Villard's own mansion was transferred to trustees William Crowninshield Endicott and Horace White to pay off a $300,000 debt.[88][89] The trustees oversaw the completion of the remaining houses around the courtyard.[13]
With the bankruptcy proceedings taking place, a crowd protested in the courtyard in early 1884, in the belief that all the houses around the yard belonged to Villard.[13][46][90] The Villard family moved out of the residence that May,[8] traveling to Dobbs Ferry, New York, after having lived on Madison Avenue for only a few weeks.[46] Work on the houses continued until 1885,[18] and Villard's finances had recovered by January 1886. William Endicott and Horace White were listed as having substantially completed the Villard Houses, which were transferred for a nominal sum to his wife Fannie Garrison Villard.[91] The residence at 457 Madison Avenue was then sold to Harris C. Fahnestock,[81][14][92] who along with Adams was a banker with the firm Winslow, Lanier & Co.[91][93] Fahnestock had waited several months to obtain number 457, but the trustees had refused to sell the property until all the other houses except for Villard's residence had been rented.[93] The rear residences on 24 and 26 East 51st Street were sold to other members of the Fahnestock family.[14]
Also in 1886, the Villard residence itself was purchased in 1886 by Elisabeth Mills Reid, wife of New-York Tribune editor Whitelaw Reid.[19] The Reid family had purchased 451 Madison Avenue for $400,000, half of what Villard had paid to build that house.[66][94] Stanford White redecorated the public rooms with such decorations as glass-and-onyx panels.[50] The residence at 24 East 51st Street was purchased by Scribner's Monthly publisher Roswell Smith.[68] Babb, Cook & Willard designed an expansion at number 24 in 1886.[26][68] The expansion, which was finished by 1892,[58] consisted of an "L"-shaped stairway leading to a double-arched entrance porch.[26]
Residential use

Roswell Smith died at 24 East 51st Street in 1892,[95] and his estate sold 24 and 26 East 51st Street two years later to Catherine L. and Charles W. Wells[96] for about $80,000.[97] Businessman E. H. Harriman was living in the north wing by 1899, when The New York Times reported on his involvement in the Harriman Alaska expedition.[98] In the first decades of the 20th century, many of the Villard Houses' residents remained in place, even when residential neighborhoods further uptown became more fashionable.[20] The Wells family continued to retain ownership of 24 East 51st Street until 1909, when the house was given to B. Crystal & Son as a partial payment for an apartment building in Washington Heights, Manhattan. At the time, the Reid, Holmes, Adams, and Fahnestock families still lived in the other residences.[99] Harris Fahnestock bought number 24 from B. Crystal & Son in 1910.[100] In that year's United States census, Fahnestock was recorded as living at number 457 with his grandson Snowden.[20]
Next door, the Reid family erected a seven- or eight-story addition east of number 451 in 1909.[35][68] The next year, McKim, Mead & White designed alterations to number 451, including new elevators.[101][102] By 1916, number 453 was leased to William Sloane.[103] At that point, the residences were known as Cathedral Court because they faced St. Patrick's Cathedral.[84][103] The following year, number 453 was in the process of being sold.[104][105] Elisabeth Reid acquired the house, loaning it during World War I to the American Red Cross.[106] Reid hired Raymond Hood in 1920 to make alterations to number 453.[107] The 1920 United States census recorded Reid as living at number 451 with seventeen servants.[20]
In March 1922, the estate of Mrs. Edward D. Adams sold the house at number 455. At this point, the southern half of the Villard Houses was owned by Reid and the north wing by Harris Fahnestock's children William Fahnestock and Helen Campbell.[84] At that time, Charles Platt combined two of the units in the northern wing.[19][58] The Fahnestocks continued to live at number 457 until 1929.[28][29] Helen Campbell, who married John Hubbard in 1929,[108] intended to continue living at 24 East 51st Street for the rest of her life.[28][29] Helen's daughter, also named Helen, lived at number 455 with her husband Clarence Gaylor Michalis and their children.[109] In 1932, William Fahnestock financed his portion of the property with a $130,000 mortgage from the First National Bank.[110] The next year, John Hubbard died at number 24.[111][112] Meanwhile, following Reid's 1931 death,[113] the furnishings in number 451 were sold during a several-day-long auction in May 1934. The auction drew thousands of people to the Reid residence.[114][115]
1940s to 1960s
The Reid family lent number 451 to the Coordinating Council of French Relief Societies in March 1942.[116] The following May, the Women's Military Services Club opened its clubhouse in the interior of number 451,[117] and the French Relief Societies moved across the courtyard to number 457.[118][119] At the opening of the Military Services Club, New York City mayor Fiorello La Guardia declared, "You won't see any more private mansions like this. You'll see more wholesome houses for more people."[120][121] Robert J. Marony acquired number 457 for around $200,000 in June 1944.[28] The government of the United States had to approve the sale because three Fahnestock heirs were overseas in internment camps during World War II.[28][29] Title to number 457 was transferred to Joseph P. Kennedy, former U.S. ambassador to the United Kingdom, in April 1945. The transaction also showed that Kennedy obtained a 9⁄24 interest at 453-455 Madison Avenue.[122] Kennedy ended up never living there,[123] and it continued to be occupied by the French Relief Societies.[58] There was also an unsuccessful plan to place the temporary headquarters of the United Nations in the Villard Houses.[124]
The Women's Military Services Club closed in January 1946 after the end of World War II, having served 200,000 people.[125] Number 457, as well as a one-third interest in the courtyard, was acquired the same year by publishing company Random House, which renovated the residence into its own offices.[126][127] Random House's publisher Bennett Cerf bought the house for $450,000, believing that to be the price Kennedy had paid.[67] The Archdiocese of New York purchased the houses at 451 and 453 Madison Avenue and 29 East 50th Street in October 1948 for an unknown amount in cash. The residences, which had been vacant for three years, had an assessed value of $825,000. The archdiocese needed space for its various agencies near St. Patrick's Cathedral, and the agencies' old headquarters had been sold to make way for the office structure at 488 Madison Avenue.[128][129] The archdiocese also purchased 455 Madison Avenue and 24 and 30 East 51st Street, as well as the vacant lot at 26-28 East 51st Street, in January 1949; these properties were valued at $600,000.[130][131] Francis Cardinal Spellman dedicated the archdiocese's offices at 451 and 453 Madison Avenue that May.[132][133]
The archdiocese hired Voorhees, Walker, Foley & Smith to renovate its office space during the early 1950s, though the renovation was not carried out.[124] Helen Fahnestock Hubbard continued to reside at 24 East 51st Street until she died overseas in 1955.[134] The archdiocese then rented number 24 to the Capital Cities Broadcasting Corporation,[124] which was headquartered there.[135] Random House subleased the first story of number 24 in 1960 from the Capital Cities Broadcasting Corporation.[136]
By the late 1960s, Random House owned number 457 and the Archdiocese of New York owned all of the other houses.[137] Random House leased space at an under-construction skyscraper at 825 Third Avenue in 1967. The company initially intended to keep space at 457 Madison Avenue,[138] but it decided to relocate entirely the following August, when Cerf called the residence "too valuable to keep".[67][124] By then, there were rumors that developers wanted to raze the houses and replace them with a skyscraper. The late Cardinal Spellman's successor Terence Cardinal Cooke had not made a public statement about the houses,[139] but Monsignor James Rigney said: "At some point we would have to wonder whether we are justified in keeping property as valuable as this."[67][140] On September 30, 1968,[141] the New York City Landmarks Preservation Commission (LPC) designated the complex as official landmarks, preventing them from being modified without the LPC's permission.[137][142]
1970s

In 1970, Richard Ottinger leased the old Random House mansion for his U.S. Senate campaign's offices.[143] Architectural writer Ada Louise Huxtable said the entire complex was in danger of being redeveloped if the archdiocese were to gain control of the Random House residence and thus full control of the land.[144] After the archdiocese received $2.25 million from Gillette CEO Henry Jacques Gaisman, it purchased number 457 in early 1971.[123][145] According to the archdiocese's real-estate adviser John J. Reynolds, the archdiocese wanted to preserve the houses so there would be open space in front of St. Patrick's Cathedral.[123] Later in 1971, the archdiocese announced it would move to 1011 First Avenue by the following year and would lease out the Villard Houses.[146][147] When the new archdiocesan headquarters opened in November 1973, the archdiocese said it hoped to find a lessee for the Villard Houses rather than sell them.[148]
In early 1974, the archdiocese was negotiating with developer Harry Helmsley to sell him the air rights above the Villard Houses.[120][149] Helmsley planned to build a 50-story hotel tower next to or above the houses.[58][120] By late 1974, the archdiocese had leased the Villard Houses to Helmsley for 99 years at around $1 million per year.[150] An early plan for the hotel called for demolishing the rear of the houses and gutting much of the interior,[45][151] including the Gold Room.[45][152] Following objections, Helmsley presented a modified plan in June 1975, which still called for demolishing part of the rear and interior.[153][154] The houses were placed on the National Register of Historic Places on September 2, 1975,[1] which prevented federal funds from being used to demolish any part of the houses unless the federal government approved it.[155] The same month, Helmsley presented a modified proposal that preserved the Gold Room.[30][45][155]
The archdiocese hired William Shopsin in January 1976 to conduct a historical survey of the Villard Houses.[30][156] Shopsin recorded the houses' existing design components for the Historic American Buildings Survey.[156] After further delays, Helmsley's 51-story hotel was approved in late 1976.[157][158] In early 1977, Emery Roth & Son hired James W. Rhodes as an architectural consultant for the project.[30][159] In the two and a half years before construction started, the archdiocese had been obliged to pay $800,000 per year in taxes because the vacant houses were no longer tax-exempt. Helmsley had paid half of this cost.[160]
A groundbreaking ceremony for the hotel occurred on January 25, 1978.[161][162] The decorative interiors of the Villard Houses were placed into temporary storage,[159][163][164] and the hotel's developer took precautions to limit damage to the Villard Houses.[156][165] Interior designer Sarah Lee was largely responsible for the redesign of the historical interiors.[30][59] The Gold Room was renovated and turned into a cocktail lounge, while the old library was refurbished with 4,000 false books.[64] The old drawing room of the south wing was redesigned as a cocktail lounge as well, while the old dining room became the hotel's Hunt Bar.[59] The facade and courtyard were also restored,[166] though the easternmost section of the complex, including much of the central wing and the additions on 50th and 51st Streets, was demolished.[30][45] The project even involved replacing some city streetlights outside the Villard Houses.[45] One of the houses' roofs was damaged in October 1979 when a heavy object fell through it.[167]
Later use
Helmsley leased 30,000 square feet (2,800 m2) in the Villard House's north wing to Jacqueline Kennedy Onassis in June 1979.[168] The space was to contain the Urban Center, the headquarters of four civic organizations: the American Institute of Architects, the Architectural League of New York, the Municipal Art Society (MAS), and the Parks Council of New York.[169] Two months later, Capital Cities Communications leased space in the hotel tower.[170]
1980s and 1990s
James Stewart Polshek and Associates renovated the north wing for the Urban Center.[70][171] The carved cornice and parquet floors of the north wing were restored, but the reception rooms were repainted and lighted for the new tenants. The Urban Center's space opened in August 1980.[172] The hotel opened the next month.[173] An architecture bookstore run by MAS opened in the north wing in October 1980; the store's first exhibition was about the Villard Houses themselves.[174][175] The second floor was used for exhibitions, the third and fifth floors were used for the organizations, and the first and fourth floors were rented as commercial space. The Urban Center's offices were rearranged from 1981 to 1982 because the original layout was inefficient.[70] The ground story of the south wing had a cocktail lounge in the former drawing room, a bar in the former dining room, and the Gold Room in the same place as before.[58]
Fashion boutique Celine of Paris leased a 5,500-square-foot (510 m2) space in the north wing in 1981.[176] During the late 1980s and early 1990s, Steven Hoffenberg hired Jeffrey Epstein as a consultant for Towers Financial Corporation, which had offices at the Villard Houses; the corporation subsequently became known as one of the biggest Ponzi schemes in American history.[177][178]

In late 1993, the houses and the New York Palace Hotel were sold to the Sultan of Brunei for $202 million.[179][180] The land remained the property of the Archdiocese of New York under a 99-year lease.[44][181] Two and a half years later, Amedeo hired Lee Jablin of Harman Jablin Architects for a renovation of the hotel and Villard Houses. Jablin would redesign the lobby in the Villard Houses, while the restaurant Le Cirque would take up the Gold Room and other rooms in the south wing.[182] The new Le Cirque location opened in April 1997.[183] Adam D. Tihany designed the Le Cirque space with multicolored coverings over the previous interiors.[184][185] Le Cirque was replaced by another restaurant, Gilt, in 2005.[186]
2000s to present
The owners of the Palace Hotel renovated the brownstone facade for $300,000 in late 2003. At the time, James W. Rhodes estimated that 99 percent of the facade's original brownstone remained; some of the pieces for the restoration had come from the demolished rear portions of the houses.[20] The MAS held a discounted lease for the space in the north wing until 2006; when the discount expired, the organization had the option to pay market rates for another 24 years.[187] MAS paid $175,000 in rent annually at the time,[187][188] but it was already considering relocating.[187] The organization moved out of the Villard Houses in 2010.[189] The building stood vacant afterward, and the Palace Hotel's owners wanted to incorporate the Villard Houses into a portion of the hotel.[188]
In 2011, the hotel was sold to Northwood Investors, which extensively renovated the hotel and the Villard Houses.[190][191] The hotel's new owners sought to lease the north wing for at least $2,000 per square foot ($22,000/m2) per year.[188] In 2014, the residences hosted the annual Kips Bay Decorator Show House program to raise money for the Kips Bay Boys & Girls Club.[192] The same year, menswear retailer Trunk Club leased the north wing.[193][194] Lotte New York Palace Hotel rented out some of the rooms in the southern residence in 2016.[60] A restaurant named Villard opened within the Villard mansion the same year.[195] In 2017, the Archdiocese of New York mortgaged the land under the Lotte New York Palace Hotel and the Villard Houses for $100 million to pay settlements to Catholic sexual abuse victims.[196][197] The Gold Room restaurant was opened in 2019 within the room of the same name.[61][198]
Critical reception
At least initially, the Real Estate Record criticized the project, saying: "There is no composition attempted, no grouping of the openings [...] no effort to express the interior, nothing indeed to indicate architecture except the delicacy of some of the detail..."[83] At the houses' completion, the British magazine The Architect said the Villard residence "will be the most magnificent residence building in the [United] States, far surpassing the Vanderbilt houses" along Fifth Avenue nearby.[17] A critic for the Real Estate Record characterized the Villard Houses as "a mild success".[36] Despite the building being "big and tiresome and as unnoticeable as so big a pile can be", the houses were "in no way offensive and can never come to look trivial or vulgar".[36] Another article for the same publication described the Villard residence in particular as "the only example of consistent adherence to one style" in New York City.[47] The New York Evening Post said the residences differed "from anything in the city" and were a departure from the château-style residences elsewhere in the city.[20]
In subsequent years, the design of the Villard Houses continued to be praised. The Christian Science Monitor wrote in 1934 that the buildings retained "the same dignity that accompanied them in 1883" and that their construction had spurred the start of interior decoration.[8] Ada Louise Huxtable described the buildings in 1968 as "one of the best buildings New York could and can claim, then or now".[139] The New York Times reported in 1971, "The complex has long been regarded as one of New York City's architectural treasures."[123] Even so, the houses remained relatively nondescript through the late 20th century.[199] Harmon Goldstone and Martha Dalrymple wrote in a 1974 book: "It is a minor miracle that this magnificent architectural island still survives in the center of midtown Manhattan."[37] Architectural writer Robert A. M. Stern described the Villard Houses as McKim, Mead & White's "first scholarly essay in the Classical architecture of the Italian Renaissance".[200]
During the 1970s, when the Palace Hotel was being developed, preservationists fought strongly to keep the houses.[58] Huxtable had called Helmsley's 1974 proposal for the Palace hotel "a death-dealing rather than a life-giving 'solution'",[141][201] and she had similarly criticized the June 1975 plan, saying: "By any measure except computerized investment design, the results are a wretched failure."[45][202] By contrast, when the September 1975 proposal called for saving the Gold Room, Huxtable stated: "There is now the promise of a solution that all can abide by."[203] Though many preservationists were not completely content about the Palace Hotel's placement behind the Villard Houses, Helmsley was nevertheless credited with saving the houses.[45] In 1981, the AIA Journal described the project as "a product of admirable human energy and down-to-earth compromise and [...] a much happier event than the architectural funeral most observers would have bet on six years ago".[204]
See also
References
Notes
- This is sometimes cited as five residences. Two of the original homes in the north wing were combined in 1922.[19]
Citations
- "Federal Register: 44 Fed. Reg. 7107 (Feb. 6, 1979)" (PDF). Library of Congress. February 6, 1979. p. 7538 (PDF p. 338). Archived (PDF) from the original on December 30, 2016. Retrieved March 8, 2020.
- "Cultural Resource Information System (CRIS)". New York State Office of Parks, Recreation and Historic Preservation. November 7, 2014. Retrieved July 20, 2023.
- National Park Service 1975, p. 2.
- White, Norval; Willensky, Elliot; Leadon, Fran (2010). AIA Guide to New York City (5th ed.). New York: Oxford University Press. p. 329. ISBN 978-0-19538-386-7.
- "457 Madison Avenue, 10022". New York City Department of City Planning. Archived from the original on July 9, 2021. Retrieved March 20, 2020.
- "455 Madison Avenue, 10022". New York City Department of City Planning. Archived from the original on July 9, 2021. Retrieved September 7, 2020.
- Stern, Mellins & Fishman 1999, pp. 601–602.
- "A City Mansion of 50 Years Ago: The Setting Sentiment and History Individual Contributions Fortune Writes in Some Asterisks". The Christian Science Monitor. August 18, 1934. p. 10. ProQuest 513594238.
- Craven 2009, p. 243.
- Roth 1983, p. 85.
- Wilson 1983, p. 95.
- Wilson 1983, pp. 95–96.
- Stern, Mellins & Fishman 1999, p. 602.
- Roth 1983, p. 88.
- Wilson 1983, p. 96.
- Reynolds 1994, p. 235.
- "A New York Palace". The Architect. Vol. 31. London. January 12, 1884. p. 34. Archived from the original on July 9, 2021. Retrieved July 7, 2021.
- AIA Journal 1981, p. 69.
- National Park Service 1975, p. 5.
- Gray, Christopher (December 21, 2003). "Streetscapes/Madison Avenue Between 50th and 51st Street; A Landmark 6-Home Complex in Dark Brownstone". The New York Times. ISSN 0362-4331. Archived from the original on July 9, 2021. Retrieved July 1, 2021.
- Reynolds 1994, pp. 235–236.
- Reynolds 1994, p. 236.
- "Villard's Palace.: Splendor of the Railroad King's Mansion". San Francisco Chronicle. December 26, 1883. p. 4. ProQuest 357226446.
- Landmarks Preservation Commission 1968a; National Park Service 1975, p. 2.
- National Park Service 1975, p. 3.
- "Henry Villard Houses (in part), 24-26 East 51st Street" (PDF). New York City Landmarks Preservation Commission. September 30, 1968. Archived (PDF) from the original on March 8, 2021. Retrieved January 1, 2021.
- "Henry Villard Houses (in part), 457 Madison Avenue" (PDF). New York City Landmarks Preservation Commission. September 30, 1968. Archived (PDF) from the original on March 8, 2021. Retrieved January 1, 2021.
- "Fahnestock's Madison Ave. Residence Sold: Home Built at $1,300,000 Cosst Bought for About $200,000 by R.J. Marony". New York Herald Tribune. June 17, 1944. p. 10B. ProQuest 1313612846.
- Cooper, Lee E. (June 17, 1944). "Fahnestock Home Sold for Business; Madison Ave. Mansion, Long a Center of Social Activity, Bought by Rail Executive" (PDF). The New York Times. p. 26. ISSN 0362-4331. Archived from the original on May 6, 2022. Retrieved July 1, 2021.
- AIA Journal 1981, p. 71.
- Craven 2009, p. 246.
- Roth 1983, pp. 87–88.
- The Architect 1884; National Park Service 1975, p. 2.
- Craven 2009, p. 245.
- "Henry Villard Houses (in part), 451-455 Madison Avenue and 29 1/2 East 50th Street" (PDF). New York City Landmarks Preservation Commission. September 30, 1968. Archived (PDF) from the original on March 8, 2021. Retrieved January 1, 2021.
- "Some Up-Town Buildings". The Real Estate Record: Real Estate Record and Builders' Guide. Vol. 33, no. 825. January 5, 1884. p. 2. Archived from the original on July 9, 2021. Retrieved July 7, 2021 – via columbia.edu.
- Oser, Alan S. (June 8, 1977). "About Real Estate". The New York Times. ISSN 0362-4331. Archived from the original on July 9, 2021. Retrieved July 5, 2021.
- White & White 2008, p. 90.
- Wilson 1983, pp. 96–97.
- Craven 2009, p. 247.
- Reynolds 1994, pp. 236–237.
- Waring, George E. Jr. (August 16, 1884). "The Drainage of the Villard House in New York". American Architect and Building News. Vol. 16. pp. 75–76.
- Real Estate Record 1885, p. 1248.
- "Historic New York City Hotel". New York Palace. Archived from the original on January 19, 2014. Retrieved January 17, 2014.
- Stern, Mellins & Fishman 1995, p. 1129.
- Roth 1983, p. 90.
- Real Estate Record 1885, p. 1247.
- Wilson 1983, p. 97.
- Reynolds 1994, p. 237.
- White & White 2008, p. 94.
- Craven 2009, p. 248.
- White & White 2008, p. 93.
- White & White 2008, p. 98.
- "Personal and Otherwise; The Whitelaw Reid Town House" (PDF). The New York Times. April 21, 1907. p. X4. ISSN 0362-4331. Archived (PDF) from the original on August 9, 2021. Retrieved July 2, 2021.
- White & White 2008, p. 102.
- "Women in Service to Have Club Here: Former Whitelaw Reid Home in Madison Avenue Will Be Opened on April 30" (PDF). The New York Times. April 11, 1943. p. 40. ISSN 0362-4331. Retrieved July 2, 2021.
- Goldberger, Paul (September 12, 1980). "Palace Hotel: A Landmark Opening; An Appraisal The Tower's a Boring Brown Box Landmark Opening for Palace Hotel Is Due Monday Whimsical Elevators $20 Million Restoration Drinks in the Drawing Room The Heart of the Problem". The New York Times. ISSN 0362-4331. Archived from the original on July 9, 2021. Retrieved July 5, 2021.
- AIA Journal 1981, p. 70.
- Architectural Record 1981, p. 68 (PDF p. 24).
- Nonko, Emily (April 27, 2016). "Exclusive Photos: Tour the Lavish South Wing of the Gilded Age Villard Houses". 6sqft. Archived from the original on July 9, 2021. Retrieved June 30, 2021.
- Tan, Michael (June 11, 2019). "Lotte New York Palace opens The Gold Room restaurant". Hotel Management. Archived from the original on July 9, 2021. Retrieved June 30, 2021.
- Reynolds 1994, pp. 237–238.
- Reynolds 1994, p. 238.
- Slesin, Suzanne (August 24, 1980). "Four New Luxury Hotels in the City: Elaborate Decor and Matching Prices; Hotels--Elaborate Decor and Prices" (PDF). The New York Times. p. 268. ISSN 0362-4331. Retrieved June 30, 2021.
- National Park Service 1975, p. 4.
- "Sold for a Song.: Whitelaw Reid Purchases Henry Villard's Palatial for $400,000". St. Louis Post-Dispatch. October 16, 1886. p. 4. ProQuest 578805390.
- Robbins, William (August 19, 1968). "Random House Will Leave Mansion for a Skyscraper; Cerf Says Decision to Move in '69 Was Made 'Reluctantly'" (PDF). The New York Times. p. 74. ISSN 0362-4331. Retrieved July 3, 2021.
- National Park Service 1975, p. 7.
- Blair, William G. (July 20, 1980). "Half of Architectural Art Objects Lost in Demolitions; Half of Architectural Art Objects Still Lost During Demolitions". The New York Times. ISSN 0362-4331. Archived from the original on March 13, 2022. Retrieved July 6, 2021.
- Wasserman, Joseph (August 1981). "The Program" (PDF). Oculus. Vol. 43. pp. 6–7. Archived (PDF) from the original on August 9, 2021. Retrieved July 7, 2021.
- AIA Journal 1981, pp. 71–72.
- "Out Among the Builders". The Real Estate Record: Real Estate Record and Builders' Guide. Vol. 28, no. 714. November 19, 1881. p. 1075. Archived from the original on July 9, 2021. Retrieved July 7, 2021 – via columbia.edu.
- Reynolds 1994, p. 234.
- "The Real Estate Market.: Recorded Real Estate Transfers". The New York Times. April 18, 1881. p. 6. ISSN 0362-4331. ProQuest 93903225.
- Roth 1983, p. 86.
- "Out Among the Builders". The Real Estate Record: Real Estate Record and Builders' Guide. Vol. 28, no. 717. December 10, 1881. p. 1145. Archived from the original on July 9, 2021. Retrieved July 7, 2021 – via columbia.edu.
- "The New York House of the Future". The Real Estate Record: Real Estate Record and Builders' Guide. Vol. 28, no. 720. December 31, 1881. p. 1208. Archived from the original on July 9, 2021. Retrieved July 7, 2021 – via columbia.edu.
- "City and Suburban News". The New York Times. May 5, 1882. p. 8. ISSN 0362-4331. Archived from the original on July 9, 2021. Retrieved June 30, 2021.
- "Plans Filed". The Real Estate Record: Real Estate Record and Builders' Guide. Vol. 29, no. 738. May 6, 1882. p. 470. Archived from the original on July 9, 2021. Retrieved July 7, 2021 – via columbia.edu.
- Roth 1983, p. 87.
- "Notes From the Register's Office" (PDF). The New York Times. December 30, 1883. p. 12. ISSN 0362-4331. Archived (PDF) from the original on August 9, 2021. Retrieved July 1, 2021.
- "Henry Villard: Suffering From Nervous Prostration and a Plethorn of Mortgages". Daily American. December 31, 1883. p. 8. ProQuest 937975691.
- "Millionaires' Houses". The Real Estate Record: Real Estate Record and Builders' Guide. Vol. 32, no. 801. July 21, 1883. p. 522. Archived from the original on July 9, 2021. Retrieved July 7, 2021 – via columbia.edu.
- "Madison Ave. House Sold; Adams Estate Disposes of Famous Villard Property" (PDF). The New York Times. March 12, 1922. p. R106. ISSN 0362-4331. Archived (PDF) from the original on August 9, 2021. Retrieved July 1, 2021.
- Stern, Mellins & Fishman 1999, p. 607.
- "The End of Villard.: the Remarkable Story of a Millionaire Now Beggared". The Atlanta Constitution. January 9, 1884. p. 1. ProQuest 494942002.
- "Vying with Vanderbilt: Henry Villard's New Mansion and Its Furnishing An Indignant Stockholder of Northern Pacific Tells Some Tales Out of School-- A Case of Railroad Wrecking". Daily American. December 21, 1883. p. 6. ProQuest 940671015.
- "Henry Villard's Work; Transferring His Big Up-town Block. The Property Placed in Other Hands to Pay a Debt of $300,000 to the Oregon Railway and Navigation" (PDF). The New York Times. January 5, 1884. p. 1. ISSN 0362-4331. Archived (PDF) from the original on August 9, 2021. Retrieved July 1, 2021.
- "The Northern Pacific: Resignation of President Villard". New-York Tribune. January 5, 1884. p. 5. Archived from the original on July 9, 2021. Retrieved July 1, 2021.
- Thompson, Ralph (April 11, 1939). "Books of the Times; Lifetime Account". The New York Times. ISSN 0362-4331. Archived from the original on July 9, 2021. Retrieved July 2, 2021.
- "Henry Villard's Estate". The New York Times. January 12, 1886. ISSN 0362-4331. Archived from the original on July 9, 2021. Retrieved June 30, 2021.
- "Conveyances". The Real Estate Record: Real Estate Record and Builders' Guide. Vol. 33, no. 830. February 9, 1884. p. 139. Archived from the original on July 9, 2021. Retrieved July 7, 2021 – via columbia.edu.
- "Villard's Madison Avenue Block: a Part of the Property Sold, but the Villard Mansion Not Yet Disposed of". New-York Tribune. January 13, 1886. p. 5. ProQuest 573235338.
- "Villard's Mansion Sold to Whitelaw Reid". Democrat and Chronicle. October 16, 1886. p. 2. Archived from the original on July 9, 2021. Retrieved July 1, 2021.
- "Roswell Smith at Rest". The Evening World. April 21, 1892. p. 2. Archived from the original on July 9, 2021. Retrieved July 2, 2021.
- "Sales of the Week". The Real Estate Record: Real Estate Record and Builders' Guide. Vol. 54, no. 1373. July 7, 1894. p. 11. Archived from the original on July 9, 2021. Retrieved July 7, 2021 – via columbia.edu.
- "In the Real Estate Field.; Some of the Transactions of Brokers and Auctioneers" (PDF). The New York Times. June 5, 1894. p. 12. ISSN 0362-4331. Archived (PDF) from the original on August 9, 2021. Retrieved July 2, 2021.
- "Scientists to Visit Alaska; Party of Americans to Leave Seattle in a Couple of Weeks" (PDF). The New York Times. April 24, 1899. p. 12. ISSN 0362-4331. Archived (PDF) from the original on August 9, 2021. Retrieved July 2, 2021.
- "Washington Heights Corner Exchanged". The Real Estate Record: Real Estate Record and Builders' Guide. Vol. 84, no. 2178. December 11, 1909. p. 1956. Archived from the original on July 9, 2021. Retrieved July 7, 2021 – via columbia.edu.
- "Sale of One of the Villard Houses". The Real Estate Record: Real Estate Record and Builders' Guide. Vol. 85, no. 2196. April 16, 1910. pp. 826–827. Archived from the original on July 9, 2021. Retrieved July 7, 2021 – via columbia.edu.
- "In the Real Estate Field; American Real Estate Company Buys Merchants Exchange Building" (PDF). The New York Times. February 26, 1910. p. 13. ISSN 0362-4331. Archived (PDF) from the original on August 9, 2021. Retrieved July 2, 2021.
- "Manhattan Alterations". The Real Estate Record: Real Estate Record and Builders' Guide. Vol. 85, no. 2189. February 26, 1910. p. 436. Archived from the original on July 9, 2021. Retrieved July 7, 2021 – via columbia.edu.
- "Manhattan". The Real Estate Record: Real Estate Record and Builders' Guide. Vol. 97, no. 2496. January 15, 1916. p. 107. Archived from the original on July 9, 2021. Retrieved July 7, 2021 – via columbia.edu.
- "North of 59th Street". The Real Estate Record: Real Estate Record and Builders' Guide. Vol. 99, no. 2553. February 17, 1917. p. 225. Archived from the original on July 9, 2021. Retrieved July 7, 2021 – via columbia.edu.
- "The Real Estate Field: Results at Auction. The Building Department. Real Estate Transfers". The New York Times. February 16, 1917. p. 18. ISSN 0362-4331. ProQuest 98146106.
- "The Red Cross Turns From War Work to the Nursery". New-York Tribune. November 7, 1920. p. F3. ProQuest 576322159.
- "Contemplated Construction". The Real Estate Record: Real Estate Record and Builders' Guide. Vol. 105, no. 23. June 12, 1920. p. 788. Archived from the original on July 9, 2021. Retrieved July 7, 2021 – via columbia.edu.
- "Mrs. Campbell Marries; Becomes Bride of John Hubbard in Paris Ceremony" (PDF). The New York Times. August 21, 1928. p. 18. ISSN 0362-4331. Retrieved November 11, 2019.
- "Mrs. Clarence Michalis Dies at Summer Home". New York Herald Tribune. June 20, 1933. p. 19. ProQuest 1337004322.
- "$130,000 Loan Arranged On Madison Ave. Corner: Property Opposite Cathedral Financed at 5 Per Cent". New York Herald Tribune. August 9, 1932. p. 30. ProQuest 1222039256.
- "John Hubbard Dead; Retired Banker Was 64: Son of Civil War General Was Former Treasurer of International Corporation". New York Herald Tribune. May 8, 1933. p. 15. ProQuest 1222120543.
- "John Hubbard Dies at the Age of 63; Ex-Treasurer of International Banking Corporation and Retired Lawyer" (PDF). The New York Times. May 8, 1933. p. 15. ISSN 0362-4331. Retrieved July 2, 2021.
- "Mrs. Whitelaw Reid Is Dead in France: Widow of the Former U.S. Ambassador to England a Victim of Pneumonia" (PDF). The New York Times. April 30, 1931. p. 23. ISSN 0362-4331. Retrieved July 2, 2021.
- "300 at Reid Sale Buy $81,415 Art; Throng in Drawing Room of Madison Av. Home Overflows Into Hall and Stairway" (PDF). The New York Times. May 3, 1934. p. 21. ISSN 0362-4331. Archived from the original on May 6, 2022. Retrieved July 2, 2021.
- "Art Collection And Furniture Are Dispersed: American Art-Anderson Galleries Opens Sale in Home of Mrs. Whitelaw Reid". New York Herald Tribune. May 3, 1934. p. 12. ProQuest 1125472940.
- "Reid Residence Lent to French Relief Council: Organization Moving Today to New Headquarters in Madison Avenue Building". New York Herald Tribune. March 19, 1942. p. 36. ProQuest 1267949104.
- "Old Landmark Mansion Taken Over As Women's Military Service Club; Parade, Speeches and Unveiling of Portraits Mark Opening of Former Whitelaw Reid Residence in Madison Avenue" (PDF). The New York Times. May 1, 1943. p. 40. ISSN 0362-4331. Retrieved July 2, 2021.
- "Art Show Aids French Relief" (PDF). The New York Times. May 23, 1943. p. X12. ISSN 0362-4331. Archived from the original on May 6, 2022. Retrieved July 3, 2021.
- "Forain Works Displayed As French Relief Benefit: 18 Oil Paintings Included in Madison Av. Exhibit". New York Herald Tribune. May 25, 1943. p. 19. ProQuest 1268023939.
- Burke, Mack; Coen, Andrew (January 13, 2014). "From the Vault: New York Palace Hotel, 455 Madison Avenue". Commercial Observer. Archived from the original on May 17, 2021. Retrieved July 7, 2021.
- "Mansions Now 'Museums,' Declares Mayor In Reid Home, to Be Service Women's Club". The New York Times. April 16, 1943. ISSN 0362-4331. Archived from the original on July 9, 2021. Retrieved July 7, 2021.
- "J.P. Kennedy Gets Title To the Fahnestock House" (PDF). The New York Times. April 30, 1945. p. 27. ISSN 0362-4331. Archived from the original on May 6, 2022. Retrieved July 1, 2021.
- Weisman, Steven R. (March 12, 1971). "Villard Houses, City Landmark, Are Purchased by Archdiocese". The New York Times. ISSN 0362-4331. Archived from the original on July 9, 2021. Retrieved July 1, 2021.
- Stern, Mellins & Fishman 1995, p. 1127.
- "Service Girls' Club to Close Here Jan.1; Since May, 1943, It Has Given Lodging at 50c a Night to 250,000 in Uniform" (PDF). The New York Times. November 20, 1945. p. 16. ISSN 0362-4331. Archived from the original on May 6, 2022. Retrieved July 3, 2021.
- "Random House Buys Building On Madison Av.: Publishing Firm Acquires Fahnestock Home at 51st St. From J. P. Kennedy". New York Herald Tribune. February 23, 1946. p. 20. ProQuest 1322158646.
- "Kennedy Resells Fahnestock Home; Random House, Inc., Purchases Old 51st St. Mansionfor Publishing Offices" (PDF). The New York Times. February 23, 1946. p. 26. ISSN 0362-4331. Archived from the original on May 6, 2022. Retrieved July 1, 2021.
- "Catholic Archdiocese Buys Home Of the Late Mrs Whitelaw Reid". New York Herald Tribune. October 22, 1948. p. 19. ProQuest 1327438572.
- "Catholic Church Buys Reid Mansion; Archdiocesan Agencies Will Be Housed in Structure at 50th St. and Madison" (PDF). The New York Times. October 22, 1948. p. 27. ISSN 0362-4331. Archived from the original on May 6, 2022. Retrieved June 30, 2021.
- "Archbishopric Buys Property On Madison Av: Hubbard Property, Opposite Cathedral, Will Be Used for Catholic Agencies". New York Herald Tribune. January 21, 1949. p. 26. ProQuest 1327119419.
- "Archdiocese Widens East Side Holdings" (PDF). The New York Times. January 21, 1949. p. 37. ISSN 0362-4331. Archived from the original on May 6, 2022. Retrieved July 1, 2021.
- "Cardinal to Note 10th Milestone With 2 Masses". New York Herald Tribune. May 21, 1949. p. 9. ProQuest 1326840176.
- "Cardinal Blesses His New Quarters; Archdiocese's Office Building Dedicated -- Formation of 9 New Parishes Announced" (PDF). The New York Times. May 23, 1949. p. 26. ISSN 0362-4331. Archived from the original on May 6, 2022. Retrieved June 30, 2021.
- "Mrs. Hubbard, 83, a Philanthropist; World Traveler Succumbs in Paris -- Donated to Music, Literary, Medical Groups" (PDF). The New York Times. August 8, 1955. p. 21. ISSN 0362-4331. Archived from the original on May 6, 2022. Retrieved July 2, 2021.
- Kihss, Peter (November 14, 1960). "Eichmann Trail to Be Seen on TV; Exclusive Contract Given to Company Here to Record It for World-wide Showing" (PDF). The New York Times. p. 13. ISSN 0362-4331. Archived from the original on May 6, 2022. Retrieved July 3, 2021.
- "Publisher Takes Floor at 24 E. 51; Random House Signs 8-Year Sublease -- Other Rentals Are Reported Here" (PDF). The New York Times. December 9, 1960. p. 54. ISSN 0362-4331. Archived from the original on May 6, 2022. Retrieved July 2, 2021.
- Ennis, Thomas W. (October 3, 1968). "Archdiocese Headquarters Buildings Designated as Landmarks" (PDF). The New York Times. p. 94. ISSN 0362-4331. Archived from the original on May 6, 2022. Retrieved July 3, 2021.
- "News of Realty: a Publisher Move; Random House to Occupy a Third of New Building" (PDF). The New York Times. September 14, 1967. p. 78. ISSN 0362-4331. Archived from the original on May 6, 2022. Retrieved July 3, 2021.
- Huxtable, Ada Louise (September 29, 1968). "How to Impoverish a City at $400 a Square Foot; How to Impoverish a City" (PDF). The New York Times. p. D31. ISSN 0362-4331. Archived from the original on May 6, 2022. Retrieved July 3, 2021.
- Stern, Mellins & Fishman 1995, pp. 1127–1128.
- Stern, Mellins & Fishman 1995, p. 1128.
- "Try to Save Villard Houses". New York Daily News. October 3, 1968. p. 18. Archived from the original on July 9, 2021. Retrieved July 3, 2021.
- "City Landmark Leased For Ottinger Campaign". The New York Times. August 12, 1970. ISSN 0362-4331. Archived from the original on July 9, 2021. Retrieved July 3, 2021.
- Huxtable, Ada Louise (February 14, 1971). "Architecture". The New York Times. ISSN 0362-4331. Archived from the original on July 9, 2021. Retrieved July 3, 2021.
- "Church Buys A Landmark". New York Daily News. March 12, 1971. p. 30. Archived from the original on July 9, 2021. Retrieved July 3, 2021.
- "Villard Houses To Be Leased". New York Daily News. August 12, 1971. p. 82. Archived from the original on July 9, 2021. Retrieved July 3, 2021.
- Fiske, Edward B. (August 12, 1971). "$21‐Million First Ave. Complex To House Archdiocesan Offices". The New York Times. ISSN 0362-4331. Archived from the original on July 9, 2021. Retrieved July 3, 2021.
- Reel, William (November 9, 1973). "20 Stories & a New Chapter". New York Daily News. p. 30. Archived from the original on July 9, 2021. Retrieved July 3, 2021.
- Horsley, Carter B. (March 15, 1974). "Archdiocese Is Negotiating to Lease Villard Houses for Hotel Air Rights". The New York Times. ISSN 0362-4331. Archived from the original on July 9, 2021. Retrieved July 3, 2021.
- Dragadze, Peter (1980). "The House that Henry Built and Harry Topped". Town & Country. pp. 142, 144.
- Goldberger, Paul (January 31, 1975). "Landmarks Unit Backs Hotel at Villard Houses". The New York Times. ISSN 0362-4331. Archived from the original on July 9, 2021. Retrieved July 5, 2021.
- Swertlow, Eleanor (May 28, 1975). "Music Room Headed for Dirge?". New York Daily News. p. 112. Archived from the original on July 9, 2021. Retrieved July 5, 2021.
- "New Hotel Design Offered For Villard Houses Locale". The New York Times. June 6, 1975. ISSN 0362-4331. Archived from the original on July 9, 2021. Retrieved July 5, 2021.
- AIA Journal 1981, pp. 70–71.
- Goldberger, Paul (September 6, 1975). "New Villard Houses Plan Preserves the Gold Room". The New York Times. ISSN 0362-4331. Archived from the original on July 9, 2021. Retrieved July 5, 2021.
- Architectural Record 1981, p. 67 (PDF p. 23).
- Mason, Bryant (October 22, 1976). "Estimate Board Approves New Hotel". New York Daily News. p. 107. Archived from the original on July 9, 2021. Retrieved July 5, 2021.
- Fowler, Glenn (October 22, 1976). "Villard Houses Hotel Plan Clears Last City Hurdle Board of Estimate's Vote". The New York Times. ISSN 0362-4331. Archived from the original on July 9, 2021. Retrieved July 5, 2021.
- Architectural Record 1981, p. 65 (PDF p. 21).
- Lescaze, Lee (January 28, 1978). "N.Y. Hotel to Preserve Face of City Landmark". The Washington Post. p. E1. ISSN 0190-8286. ProQuest 146895488.
- "Into Glitter of Hotel Biz, Enter, The Palace". New York Daily News. January 26, 1978. p. 305. Archived from the original on July 9, 2021. Retrieved July 5, 2021.
- "Work Starts in New York For City's Tallest Hotel". The Wall Street Journal. January 26, 1978. p. 30. ISSN 0099-9660. ProQuest 134276172.
- "Villard Interiors Go Into Storage". The New York Times. March 15, 1978. ISSN 0362-4331. Archived from the original on July 9, 2021. Retrieved July 5, 2021.
- "Yielding to Progress". New York Daily News. March 15, 1978. p. 327. Archived from the original on July 9, 2021. Retrieved July 5, 2021.
- Mouat, Lucia (January 5, 1979). "Landmark to be part of N.Y.'s tallest hotel". The Christian Science Monitor. p. 15. ProQuest 512130103.
- "Outstanding architecture". The Journal News. November 11, 1979. p. 79. Archived from the original on July 9, 2021. Retrieved July 5, 2021.
- "House-razing". New York Daily News. October 26, 1979. p. 7. Archived from the original on July 9, 2021. Retrieved July 5, 2021.
- "Jackie's artsy gesture". New York Daily News. June 22, 1979. p. 266. Archived from the original on July 9, 2021. Retrieved July 5, 2021.
- Corry, John (October 8, 1980). "Going Out Guide; at the Villard Houses Dusty Springfield Is Back Jade at Asia House" (PDF). The New York Times. p. 76. ISSN 0362-4331. Archived from the original on May 6, 2022. Retrieved July 2, 2021.
- "Realty News". The New York Times. August 19, 1979. ISSN 0362-4331. Archived from the original on July 9, 2021. Retrieved July 5, 2021.
- AIA Journal 1981, p. 72.
- Goldberger, Paul (August 16, 1980). "An Urban Center Opens In a Midtown Landmark; A Tumbling Grand Central Model The Emerging Shape of the City Houses Were Built in 1884 New Hampshire Group To Stage 'Don Giovanni'". The New York Times. ISSN 0362-4331. Archived from the original on July 9, 2021. Retrieved July 5, 2021.
- Clendinen, Dudley (September 16, 1980). "Palace Opens, With a Few Reservations; Good Wishes From Staff The Helmsley Palace, Still Mostly Unbuilt, Has Its Grand Opening Rooms Tested Earlier Computer-Controlled Locks". The New York Times. ISSN 0362-4331. Archived from the original on July 9, 2021. Retrieved July 5, 2021.
- "Architecture Bookstore Opens in Villard Houses". The New York Times. October 9, 1980. ISSN 0362-4331. Archived from the original on July 9, 2021. Retrieved July 2, 2021.
- Cherubin, Jan (October 4, 1980). "Sites of the city". New York Daily News. p. 269. Archived from the original on July 9, 2021. Retrieved July 7, 2021.
- "Realty News; Villard Houses". The New York Times. January 4, 1981. ISSN 0362-4331. Archived from the original on July 9, 2021. Retrieved July 7, 2021.
- Ward, Vicky (June 27, 2011). "The Talented Mr. Epstein". Vanity Fair. New York City: Condé Nast. Archived from the original on June 12, 2015. Retrieved June 11, 2015.
- Stewart, James B.; Goldstein, Matthew; Kelly, Kate; Enrich, David (July 11, 2019). "Jeffrey Epstein's Fortune May Be More Illusion Than Fact". The New York Times. ISSN 0362-4331. Archived from the original on July 11, 2019. Retrieved July 7, 2021.
- McDowell, Edwin (November 1, 1993). "Helmsley Palace Succession: Brunei Royalty Buying Hotel". The New York Times. ISSN 0362-4331. Archived from the original on July 9, 2021. Retrieved July 5, 2021.
- "Brunei's royal family in partnership to buy ex-Helmsley Palace". The Wall Street Journal. November 2, 1993. p. A9. ISSN 0099-9660. ProQuest 398466633.
- Bagli, Charles V. (December 29, 2000). "What's Fair Rent on the Palace? Royalty and the Church Disagree". The New York Times. ISSN 0362-4331. Archived from the original on July 9, 2021. Retrieved June 30, 2021.
- "Postings: $100 Million Renovation;Playing The Palace: The Good Old Days". The New York Times. June 9, 1996. ISSN 0362-4331. Archived from the original on July 9, 2021. Retrieved July 6, 2021.
- Fabricant, Florence (April 30, 1997). "Behind the Scenes of the Opening-Day Lunch". The New York Times. ISSN 0362-4331. Archived from the original on July 9, 2021. Retrieved July 6, 2021.
- Witchel, Alex (April 2, 1997). "Restaurants' Ringmaster". The New York Times. ISSN 0362-4331. Archived from the original on July 9, 2021. Retrieved July 6, 2021.
- Stern, Robert A. M.; Fishman, David; Tilove, Jacob (2006). New York 2000: Architecture and Urbanism Between the Bicentennial and the Millennium. New York: Monacelli Press. p. 1082. ISBN 978-1-58093-177-9. OCLC 70267065. OL 22741487M.
- Fabricant, Florence (December 14, 2005). "Aromas Return to Le Cirque Space". The New York Times. ISSN 0362-4331. Archived from the original on July 9, 2021. Retrieved July 6, 2021.
- Mindlin, Alex (September 24, 2006). "Contemplating Saying Ciao to a Palazzo on Madison". The New York Times. ISSN 0362-4331. Archived from the original on July 9, 2021. Retrieved July 7, 2021.
- Barbanel, Josh; Kusisto, Laura (February 29, 2012). "Villard Houses Seeks Prime Retailer". The Wall Street Journal. ISSN 0099-9660. Archived from the original on June 2, 2013. Retrieved July 7, 2021.
- Sulzberger, A. G. (January 14, 2010). "Urban Center Draws Its Curtains Closed". City Room. Archived from the original on June 29, 2020. Retrieved July 7, 2021.
- Brandt, Nadja (May 18, 2011). "New York Palace Hotel to Be Sold to Kukral's Northwood". Bloomberg. Archived from the original on January 9, 2015. Retrieved July 6, 2021.
- Wotapka, Dawn; Hudson, Kris (May 19, 2011). "Deal Set for Palace". The Wall Street Journal. ISSN 0099-9660. Archived from the original on June 4, 2012. Retrieved July 7, 2021.
- Green, Penelope (April 30, 2014). "Rocking the Palazzo". The New York Times. ISSN 0362-4331. Archived from the original on July 9, 2021. Retrieved June 30, 2021.
- Pasquarelli, Adrianne (September 7, 2015). "This old house is the new storefront" (PDF). Crain's New York. Vol. 31, no. 36. p. 1. ProQuest 1710724379. Archived (PDF) from the original on July 9, 2021. Retrieved July 7, 2021.
- "Classic Villard mansion clicks with new e-tailer". Real Estate Weekly. October 30, 2014. Archived from the original on July 9, 2021. Retrieved July 7, 2021.
- "Lotte New York Palace Opens Restaurant in The Villard Mansion". Luxury Travel Magazine. August 31, 2016. Archived from the original on July 9, 2021. Retrieved June 30, 2021.
- Fractenberg, Ben (March 1, 2017). "$100M Loan to Archdiocese May Not Cover All Abuse Victim Claims: Lawyer". DNAinfo New York. Archived from the original on July 11, 2021. Retrieved July 3, 2021.
- Otterman, Sharon (March 1, 2017). "Archdiocese of New York Seeks $100 Million Mortgage for Sexual Abuse Fund". The New York Times. ISSN 0362-4331. Archived from the original on July 9, 2021. Retrieved July 3, 2021.
- Fabricant, Florence (May 14, 2019). "New Essex Street Market Opens in an Enormous New Space". The New York Times. ISSN 0362-4331. Archived from the original on July 9, 2021. Retrieved July 1, 2021.
- Fried, Joseph P. (September 24, 1967). "Designers Savor a Centure of Architecture; Architects Savor Past" (PDF). The New York Times. p. 390. ISSN 0362-4331. Archived from the original on May 6, 2022. Retrieved July 3, 2021.
- Stern, Mellins & Fishman 1999, p. 601.
- Huxtable, Ada Louise (January 5, 1975). "Architecture View: They Call This 'Saving' a Landmark?". The New York Times. p. D29. ISSN 0362-4331. ProQuest 120575764.
- Huxtable, Ada Louise (June 22, 1975). "Architecture View: the Needless Sacrifice of the Villard Houses". The New York Times. ISSN 0362-4331. Archived from the original on July 9, 2021. Retrieved July 5, 2021.
- Huxtable, Ada Louise (September 21, 1975). "Architecture View: Another Chapter in the Urban Saga". The New York Times. ISSN 0362-4331. Archived from the original on July 9, 2021. Retrieved July 5, 2021.
- AIA Journal 1981, p. 73.
Sources
- Craven, Wayne (2009). Gilded Mansions: Grand Architecture and High Society. W.W. Norton & Company. ISBN 978-0-393-06754-5.
- "Interior of the Villard House". The Real Estate Record: Real Estate Record and Builders' Guide. Vol. 36, no. 922. November 14, 1885. pp. 1247–1248 – via columbia.edu.
- Kathrens, Michael C. (2005). Great Houses of New York, 1880–1930. Acanthus Press. p. 207. ISBN 978-0-926494-34-3.
- Reynolds, Donald (1994). The Architecture of New York City: Histories and Views of Important Structures, Sites, and Symbols. J. Wiley. ISBN 978-0-471-01439-3. OCLC 45730295.
- Roth, Leland (1983). McKim, Mead & White, Architects. Harper & Row. ISBN 978-0-06-430136-7. OCLC 9325269.
- Stern, Robert A. M.; Mellins, Thomas; Fishman, David (1995). New York 1960: Architecture and Urbanism Between the Second World War and the Bicentennial. New York: Monacelli Press. ISBN 1-885254-02-4. OCLC 32159240. OL 1130718M.
- Stern, Robert A. M.; Mellins, Thomas; Fishman, David (1999). New York 1880: Architecture and Urbanism in the Gilded Age. Monacelli Press. ISBN 978-1-58093-027-7. OCLC 40698653.
- "The Latest Life of the Villard Houses" (PDF). AIA Journal. Vol. 70, no. 2. February 1981. p. 271. ISSN 0001-1479.
- "The Villard Houses" (PDF). Architectural Record: Record Interiors. February 1981. pp. 65–68.
- "Villard Houses" (PDF). National Register of Historic Places, National Park Service. September 2, 1975.
- White, Samuel G.; White, Elizabeth (2008). Stanford White, Architect. Rizzoli. ISBN 978-0-8478-3079-4. OCLC 192080799.
- Wilson, Richard Guy (1983). McKim, Mead & White, architects. Rizzoli. ISBN 978-0-8478-0491-7. OCLC 9413129.


